Image

Ellimmo Vastgoed

Image

Markt 20
3740 Bilzen
+32 476 20 35 69

ellen@ellimmo.be

© 2025 Ellimmo Vastgoed

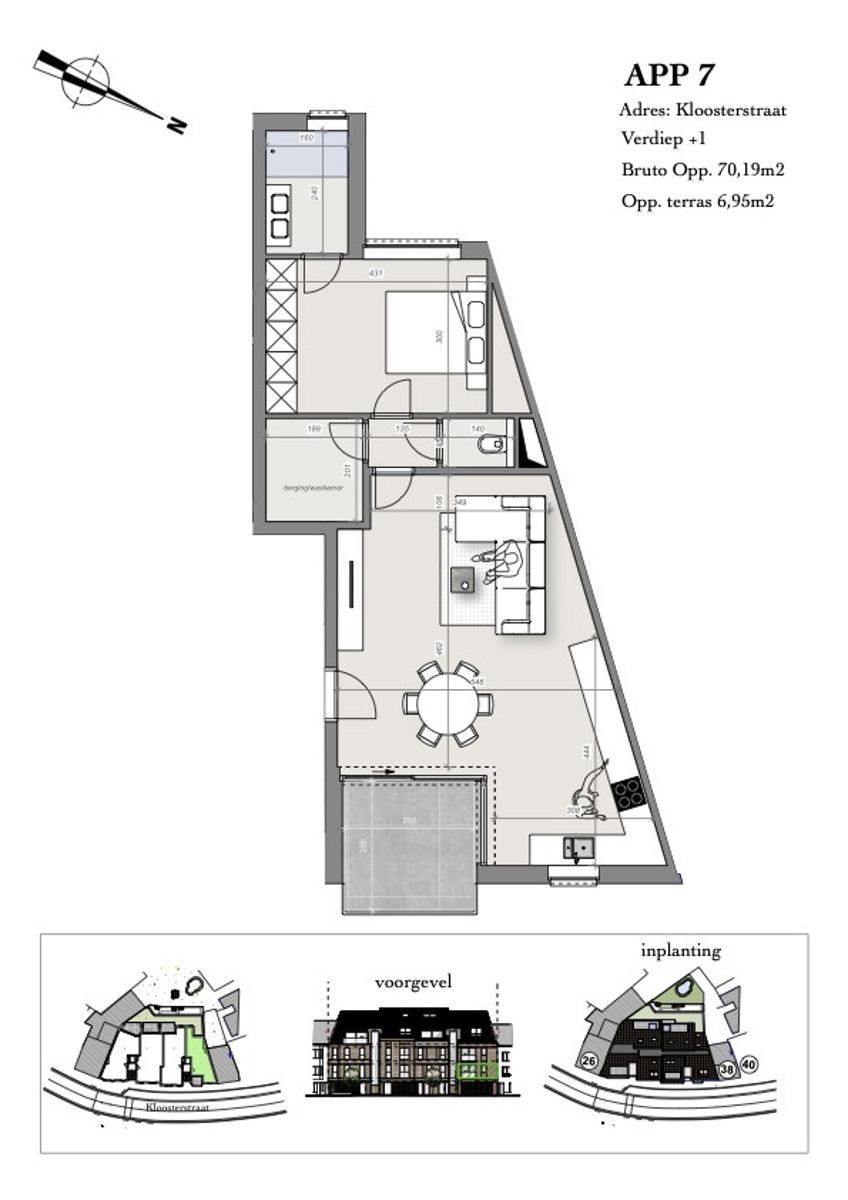
App 7

In het kloppend hart van Bilzen, waar stadscharme en gezelligheid samensmelten, wordt dit bijzonder prestigieus nieuwbouwproject, Residentie Parkzicht, gebouwd. Een kleinschalige en uiterst stijlvolle residentie met slechts 13 exclusieve appartementen zorgvuldig ontworpen met veel oog voor detail. Deze uitzonderlijke ligging is ronduit uniek; midden in het centrum, met alle voorzieningen letterlijk aan de voordeur, van fijne boetieks tot lekker tafelen tot cultuur en ontspanning. Maar aan de achterzijde van de blok is er een uitzicht op het prachtige groene park van Petry, een levend schilderij dat elk seizoen opnieuw erg charmeert. Het is een uitzicht dat uitnodigt om te vertragen en zorgeloos te genieten.

Binnen wordt dezelfde sereniteit doorgetrokken. Elk appartement wordt afgewerkt met hoogwaardige materialen, tijdloze klasse en met de allerlaatste technieken. De royale raampartijen brengen overvloedig daglicht binnen en de ruime terrassen zorgen voor een heerlijk verlengde van de leefruimte.

In residentie Parkzicht begint en nieuw hoofdstuk in stijl - elegant, ontspannen en volledig zonder zorgen!

Ben je op zoek naar een stijlvol appartement, midden in het centrum van het bruisende Bilzen met een uniek groen uitzicht op park Petry? Dan is dit je unieke kans! Maak snel je afspraak met Ellen via 0476 / 20 35 69 of via ellen@ellimmo.be.

Prijs

286.450

Bewoonbare oppervlakte

70m2

Slaapkamers

1
Image

Karakteristieken

Aantal slaapkamers
Aantal badkamers
Aantal toiletten
Bewoonbare oppervlakte
70 m²
Perceelgrootte
0 m²

Basisuitrusting

Voorzieningen gehandicapten
Ja
Type verwarming
individueel
Lift
Ja
Type verwarming
warmtepomp
Badkamer
alle comfort
Videofoon
Ja

Technische uitrusting

Type schrijnwerkerij
aluminium
Zonnepanelen
Ja (fotovoltaïsche)

Veiligheid

Gebouw

Bouwjaar
2026

Diverse

Buitenkant & omgeving

Terras 1
6.95m²

Buitenkant

Omgeving

Oriëntatie van het terrein - terras
west
Oriëntatie van het terrein - tuin
west
O-peil
niet gelegen in een overstromingsgevoelig gebied
Overstromingsrisico
Klasse A (geen kans)
G-score
A
P-score
A

Aansluitingen

Woonomgeving

Prijs & kosten

Lasten & opbrengst

Energie

EPC-klasse
A
EPC (JKwh/m²/j)
20

Kadaster

Juridisch

Servitude
Nee
Vonnissen
Nee
Bouwvergunning
Ja
Verkavelingsvergunning
Nee
Bestemming gebouw (type)
privé - eengezins
Voorkooprecht
Nee
Bestemming terrein
woongebied
Dagvaarding
Nee

Certificaten

Documenten