
Ellimmo Vastgoed
In het kloppend hart van Bilzen, waar stadscharme en gezelligheid samensmelten, wordt dit bijzonder prestigieus nieuwbouwproject, Residentie Parkzicht, gebouwd. Een kleinschalige en uiterst stijlvolle residentie met slechts 13 exclusieve appartementen zorgvuldig ontworpen met veel oog voor detail. Deze uitzonderlijke ligging is ronduit uniek; midden in het centrum, met alle voorzieningen letterlijk aan de voordeur, van fijne boetieks tot lekker tafelen tot cultuur en ontspanning. Maar aan de achterzijde van de blok is er een uitzicht op het prachtige groene park van Petry, een levend schilderij dat elk seizoen opnieuw erg charmeert. Het is een uitzicht dat uitnodigt om te vertragen en zorgeloos te genieten.
Binnen wordt dezelfde sereniteit doorgetrokken. Elk appartement wordt afgewerkt met hoogwaardige materialen, tijdloze klasse en met de allerlaatste technieken. De royale raampartijen brengen overvloedig daglicht binnen en de ruime terrassen zorgen voor een heerlijk verlengde van de leefruimte.
In residentie Parkzicht begint en nieuw hoofdstuk in stijl - elegant, ontspannen en volledig zonder zorgen!
Ben je op zoek naar een stijlvol appartement, midden in het centrum van het bruisende Bilzen met een uniek groen uitzicht op park Petry? Dan is dit je unieke kans! Maak snel je afspraak met Ellen via 0476 / 20 35 69 of via ellen@ellimmo.be.
Prijs
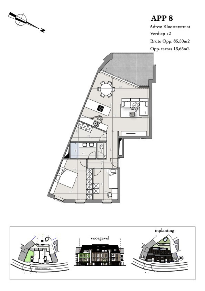
347.445€Bewoonbare oppervlakte
85m2Slaapkamers
2