
Ellimmo Vastgoed
RESIDENTIE LE JARDIN – BILZEN
Tussen groen en elegantie verrijst een nieuw woonproject dat tijdloze klasse ademt. Achter de strakke lijnen van 3 verfijnde gebouwen schuilt een oase van groen en rust; 18 stijlvolle appartementen, elk ontworpen met oog voor ruimte, licht en harmonie.
Grote terrassen worden een verlengde van de woonkamer, omgeven door een prachtige aangelegde tuin die het geheel een serene uitstraling geeft. Binnen gaat verfijning hand in hand met ultiem comfort; luxueuze afwerkingen met een keukenbudget van € 25.000 - en een badkamerbuget van € 8.000 - zorgen voor pure verwennerij.
Daarnaast is elke woning uitgerust met vloerverwarming via warmtepompen en zonnepanelen, het laatste nieuwe ventilatie D-systeem, airco's in de leefruimte en in de slaapkamers samen met de elektrische suncreens aan alle ramen zorgen voor een zalig binnenklimaat en zonlicht zoals jij dat zelf wilt. Elk appartement zal genieten van de regenwaterrecuperatie en zelfs een eerste verflaag wordt met zorg aangebracht zodat elk detail meteen klopt vanaf de eerste dag.
Ook de locatie is super, het project is gelegen op amper 850m van de bruisende markt van Bilzen met zijn heerlijke horeca, stijlvolle boetieks en gezellige markt. Maar ook de Kimpel met zijn mooie parken, bibliotheek, openbaar zwembad en tennispleinen liggen op slechts 1km, alles perfect op wandelafstand. Daarnaast is het amper 3 minuten rijden tot de opritten van de autosnelwegen en zelfs het centrum van Maastricht ligt op amper 10km.
Residentie Le Jardin is een plek waar wonen meer wordt dan een adres, het wordt een gevoel van thuiskomen, in stijl omringd door het groen, rust en tijdloze elegantie.
AANKOOP AAN 6% BTW MOGELIJK!
Royale afwerkingsbudgetten
Inclusief autostaanplaats en kelderberging
Energiezuinig: warmtepomp, zonnepanelen, vloerverwarming, ventilatiesysteem D
3 standaard airco’s, sunscreens, 1ste laag verf en regenwaterrecuperatie voorzien
Op 850m van de bruisnde Markt van Bilzen met winkels, horeca en ontspanning en op slechts 2km van de opritten van de autosnelwegen
ZORGELOOS
We begeleiden je niet alleen bij de aankoop van je nieuwe appartement, maar helpen je ook graag met de verkoop van je huidige woning. Zo verloopt de overstap zorgeloos.
Wil jij genieten van luxe en comfort gekleed in een stijlvolle architectuur en dit in een oase van groen op een toplocatie in Bilzen? Mis deze unieke kans niet! Voor meer info of een afspraak, contacteer Ellen via 0476 / 20 35 69 of via ellen@ellimmo.be.
Prijs
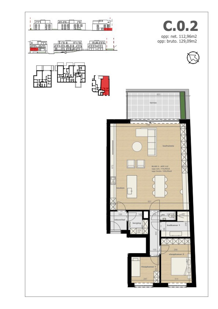
Op aanvraagBewoonbare oppervlakte
129m2Slaapkamers
2